Green Life Sancaktepe – Şehrin Merkezinde, Doğanın Kalbinde
İstanbul’un gelişen bölgesi Sancaktepe Samandıra’da konumlanan Green Life Projesi, doğayla iç içe bir yaşamı şehrin merkezine taşıyor.
60 dönümlük mesire alanına komşu, iki cephesi orman manzaralı projemiz; Atlaspark AVM’ye 4 km, Sancaktepe Belediyesi’ne 2,5 km, Samandıra Metro İstasyonu’na 2 km, Sabiha Gökçen Havalimanı’na 17 km mesafede yer alıyor.
Anadolu Otoyolu’na doğrudan bağlantı avantajı sayesinde İstanbul’un her noktasına kolay ulaşım imkânı sunuyor.
Ayrıca Kartal Sahili’ne 14 km, FSM Köprüsü’ne 25 km ve İstanbul Havalimanı’na 60 km uzaklıkta, merkezi konumuyla hem yaşam hem yatırım açısından yüksek değer taşıyor.
7 blokta 92 daireden oluşan butik proje; geniş peyzaj alanları, yürüyüş parkuru, süs havuzları ve çocuk oyun alanlarıyla huzurlu bir yaşamın kapılarını aralıyor.
Green Life Sancaktepe, şehirle doğayı kusursuz biçimde buluşturan yeni nesil bir yaşam projesidir. 🌿
🎥. Proje Tanım Video
🌳 Dış Mekan
🏠 İç Mekan
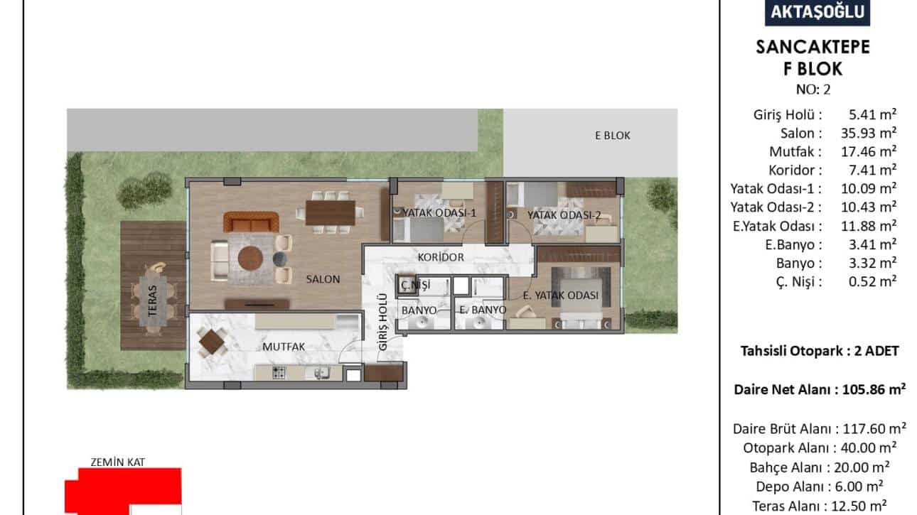
📐 Kat Planları
📘 Proje Katalog
🎥. Proje Tanım Video
🌳 Dış Mekan
🏠 İç Mekan
📐 Kat Planları
📘 Proje Katalog






































































